Beschrijving
Algemeen:
Multifunctionele bedrijfsruimte op bedrijventerrein 'Barendrecht Noordoost. Te gebruiken als opslagruimte, productieruimte food, showroom, winkel, kantoor of een combinatie van deze functies.
Indeling:
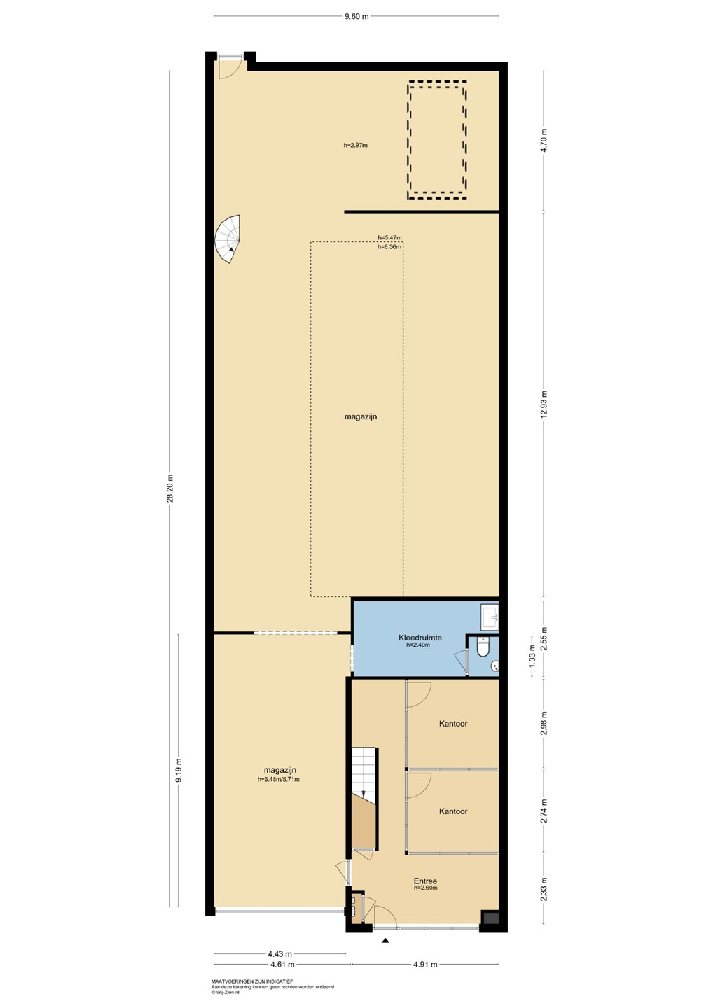
Begane grond:
Kantoor Ca. 40 m2
Bedrijfsruimte: Ca. 236 m2
1e verdieping:
Kantoor Ca. 40 m2
Entresol Ca. 65 m2
Parkeren:
4 parkeerplaatsen op eigen terrein
Buitenterrein achterzijde:
Achter het pand is nog ca. 50 m2 afgesloten buitenterrein gelegen.
Bestemming:
Bedrijf t/m cat. 3.1 en detailhandel perifeer.
Locatiegegevens:
Zeer goed bereikbaar: afrit A15 gelegen op 500 meter. Gelegen op bedrijventerrein 'Barendrecht Noordoost’ direct tegen Rotterdam aan.
Kenmerken:
- buitenkozijnen: hardhout
- recente vernieuwde meterkast met aansluitingen op nutsaansluitingen;
- vloerbelasting 1.500 kg/m² begane grond,
- verwarming d.m.v. radiatoren in kantoren;
- houten trap naar 1e etage en stalen strap naar entresol;
- Enkel toilet op begane grond, betegeld en voorzien van fonteintje;
- Keuken met diverse inbouwapparatuur;
- Separate uitstortgootsteen bedrijfsruimte;
- te openen ramen;
- ledverlichting verlichting in systeemplafond;
- kantoor voorzien van airconditioning;
- buitenterrein: verhard door middel van betonklinkers.
Parkeren:
4 eigen parkeerplaatsen aan de voorzijde.
Huurprijs:
€ 4200,00 per maand excl. b.t.w.
Servicekosten:
n.v.t.
Gas/water/electra dient op eigen naam te worden gezet door huurder.
Huurperiode:
In nader overleg.
Oplevering:
Beschikbaar per direct.
Huurprijsherziening:
Jaarlijks, voor het eerst een jaar na datum huuringang, op basis van de wijziging van het maandindexcijfer volgens de consumentenprijsindex (CPI) reeks CPI-Alle Huishoudens (2015=100), gepubliceerd door het Centraal Bureau voor de Statistiek (CBS).
Huurgarantie:
Voor oplevering van de ruimte te verstrekken ter grootte van een betalingsverplichting van minimaal 3 maanden inclusief b.t.w.
BTW:
Over de huurprijs zal b.t.w. in rekening worden gebracht. Indien b.t.w. niet in rekening kan worden gebracht, geldt een nader te bepalen opslag op bovengenoemde huurprijzen.
Huurovereenkomst:
Huurovereenkomst op basis van het standaardmodel van de Raad voor Onroerende Zaken (ROZ) model februari 2015.