| Prijs | € 4.200,- /mnd |
| Type object | Bedrijfshal |
| Perceeloppervlakte | 449 m² |
| Totale VVO | 381 m² |
| Aanvaarding | In overleg |
| Status | Verhuurd |
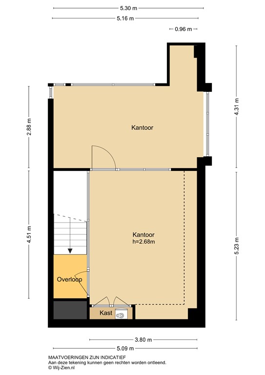
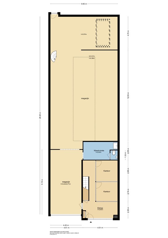
Algemeen: Multifunctionele bedrijfsruimte op bedrijventerrein 'Barendrecht Noordoost. Te gebruiken als opslagruimte, productieruimte food, showroom, winkel, kantoor of een combinatie van deze functies. Indeling: Begane grond: Kantoor Ca. 40 m2 Bedrijfsruimte: Ca. 236 m2 1e verdieping: Kantoor Ca. 40 m2 Entresol Ca. 65 m2 Parkeren: 4 parkeerplaatsen op eigen terrein Buitenterrein achterzijde: Achter het pand is nog ca. 50 m2 afgesloten buitenterrein gelegen. Bestemming: Bedrijf t/m cat. 3.1 en detailhandel perifeer. Locatiegegevens: Zeer goed bereikbaar: afrit A15 gelegen op 500 meter. Gelegen op bedrijventerrein 'Barendrecht Noordoost’ direct tegen Rotterdam aan. Kenmerken: - buitenkozijnen: hardhout - recente vernieuwde meterkast met aansluitingen op nutsaansluitingen; - vloerbelasting 1.500 kg/m² begane grond, - verwarming d.m.v. radiatoren in kantoren; - houten trap naar 1e etage en stalen strap naar entresol; - Enkel toilet op begane grond, betegeld en voorzien van fonteintje; - Keuken met diverse inbouwapparatuur; - Separate uitstortgootsteen bedrijfsruimte; - te openen ramen; - ledverlichting verlichting in systeemplafond; - kantoor voorzien van airconditioning; - buitenterrein: verhard door middel van betonklinkers. Parkeren: 4 eigen parkeerplaatsen aan de voorzijde. Huurprijs: € 4200,00 per maand excl. b.t.w. Servicekosten: n.v.t. Gas/water/electra dient op eigen naam te worden gezet door huurder. Huurperiode: In nader overleg. Oplevering: Beschikbaar per direct. Huurprijsherziening: Jaarlijks, voor het eerst een jaar na datum huuringang, op basis van de wijziging van het maandindexcijfer volgens de consumentenprijsindex (CPI) reeks CPI-Alle Huishoudens (2015=100), gepubliceerd door het Centraal Bureau voor de Statistiek (CBS). Huurgarantie: Voor oplevering van de ruimte te verstrekken ter grootte van een betalingsverplichting van minimaal 3 maanden inclusief b.t.w. BTW: Over de huurprijs zal b.t.w. in rekening worden gebracht. Indien b.t.w. niet in rekening kan worden gebracht, geldt een nader te bepalen opslag op bovengenoemde huurprijzen. Huurovereenkomst: Huurovereenkomst op basis van het standaardmodel van de Raad voor Onroerende Zaken (ROZ) model februari 2015.
| Referentienummer | 64 |
| Huurprijs | € 4.200,- per maand |
| Status | Verhuurd |
| Aanvaarding | In overleg |
| Aangeboden sinds | Dinsdag 16 september 2025 |
| Laatste wijziging | Donderdag 15 januari 2026 |
| Type object | Bedrijfshal |
| Soort bouw | Bestaande bouw |
| Perceeloppervlakte | 449 m² |
| VVO | 301 m² |
| Kantoor oppervlakte | 80 m² |
| Totale verhuurbare vloeroppervlakte | 381 m² |
| Vrije hoogte | 6 m. |
| Draagvermogen | 1.500 kg/m² |
| Ligging | Bedrijventerrein Nabij winkelcentrum Perifere Detailhandels Vestigingen (PDV) |
| Uitrusting | Heater Krachtstroom Lichtstraten Overheaddeuren Pantry Toilet |
| Heeft een kantoor | Ja |